The property is located in an urban area in the municipality of Sanremo, on Via Vesco, in the San Martino district. It is within walking distance of all the services the neighborhood offers: pharmacy, grocery stores, post office, public school, bars, and restaurants.
The beaches, the 30 km pedestrian and cycling path along the coast, and the city center are easily reachable on foot.
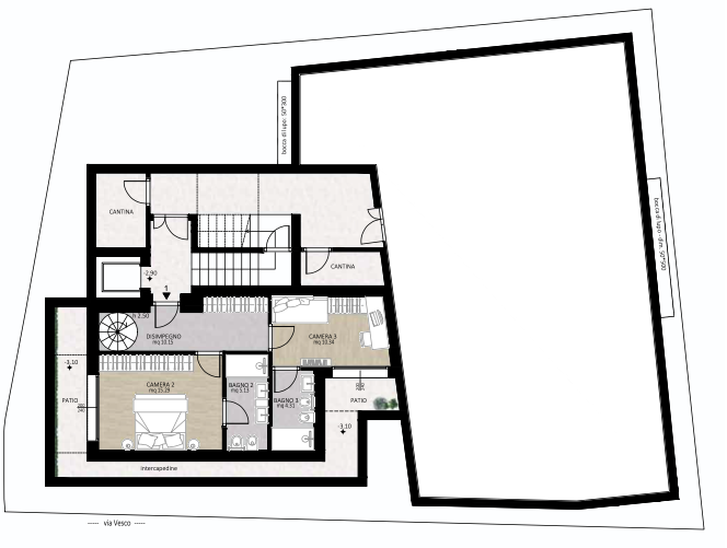
The project involves the construction of a three-story residential building above ground and an underground floor partially designated as a cellar, laundry, and restroom, and partially as a parking area accessible via a car elevator system. The building, constructed with a block building type characterized by one apartment per floor, is located within the plot on the footprint of the pre-existing building, respecting its original alignments, except for the southeast front where the volumetric expansion of the project is located, also respecting the distances from the boundaries and other buildings. The privileged view towards the southwest, overlooking Via Vesco, features balconies enhanced by pergolas that integrate greenery into the architecture and allow for the installation of external awnings for solar shading. The same structures that form the pergolas encircle the entire building, giving the balconies and projecting structures a regular stereometric shape. The color scheme favors natural colors ranging from shades of gray to taupe. The railings are made of micaceous iron gray metal mesh, the same color as the top flashings and the cladding of the external staircase ramps. On the ground floor, the complex is completed with communal pathways and green areas, while the northwest and southwest front areas are private to the lower-floor apartment.
In compliance with current regulations, the installation of photovoltaic panels is planned on the roof, and to accommodate the systems, a terrace will be built. All units are accessible and adaptable, in compliance with regulations concerning architectural barriers.
Various types, prices starting from €340,000.00.










